stacionární bojler - zásobník SE / 140 (V0/140)
Kód: 10950Související produkty
Detailní popis produktu
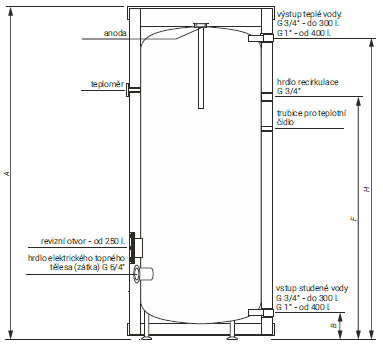
ROZMĚRY:

TECHNICKÉ ÚDAJE:
Bojlery typu SE dodáváme v litrážích 140 až 500 litrů. Typ bojleru SE z naší nabídky je standardně dodáván bez elektrického ohřevu a může být vybaven elektrickým ohřevem dle nabídky v části Elektrická topná tělesa - topné moduly T.
Návod si stáhněte zde: návod "SE"
Doplňkové parametry
| Kategorie: | Bojlery SE- akumulační nádrže bez elektrického ohřevu |
|---|---|
| Hmotnost: | 51 kg |
| EAN: | 8591565109502 |
| Objem zásobníku: | 140 litrů |
Buďte první, kdo napíše příspěvek k této položce.
Přidat komentář